• ESTUDIO
  • PROYECTOS
  • NOTICIAS
  • Contacto
  • Hotelería
  • Residencial
  • Vertical
  • Corporativo
  • Otros

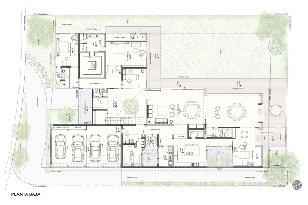
SANTA ANITA 108

imagen 1
imagen 2
imagen 3
imagen 4
imagen 5
imagen 6
imagen 7
imagen 8
imagen 9
Zapopan Jal
en construcción
EDIFICA FM
Terreno: 1,336m2
Construcción: 753m2
Estudio Proyectos Noticias Contacto

Rubén Darío 1533 Piso 8 | Col. Providencia, Sección 4 | C.P. 44639 | Guadalajara, Jalisco, México

Tel. 33 36 30 00 30